Nationwide specialists in rural pole sheds.
Easy Kit specialises in pole shed kitsets on rural lifestyle blocks and farms nationwide.
Fast & Easy
Get a quote in seconds by using our live pricing software and order online.
Complete Kit
Every kitset is triple checked to ensure accuracy and sent in one complete delivery. No drop shipping and no missing items.
Pre-Dried Timber
All timber is dried and graded in our own yard to ensure quality control, not sent directly to you from the mill.
Browse most popular sheds
Shed 03
Specifications
- Size: 9.0m deep, 12.0m long.- Bays: 2x 6.0m wide, open front.
- 4.0m down to 3.25m at the back.
- Zinc 5-rib on roof and walls.
- 1 centre pole.
$14,820 + GST
Shed 06
Specifications
- Size: 6.0m deep, 18.0m long.- Bays: 3x 6.0m wide, 1 bay enclosed, 2 open front.
- 3.6m at the front, down to 3.1m at the back.
- Zinc 5-rib on roof and walls.
- 6.0m timber beams – no centre pole.
$20,690 +GST
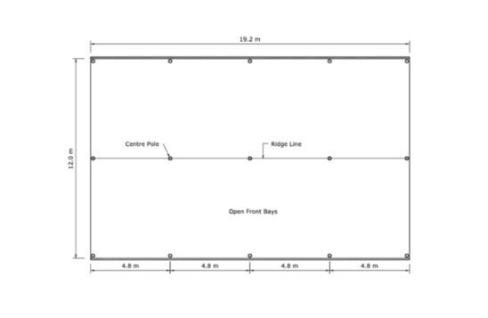
Shed 08
Specifications
- Size: 12.0m deep, 19.2m long.- Bays: 4x 4.8m wide, open front.
- Side height of 5.0m up to 5.5m at the apex.
- Zinc 5-rib on roof and walls
- 3 centre poles.
$28,590 + GST
Ordering a Pole Shed Shouldn't Be Difficult.
If you've bought a pole shed before, you might have experienced:
Lengthy Delays: It took weeks to get your quote, and when you received it, it was over-complicated and difficult to understand.
Multiple Deliveries: The shed turned up in multiple separate shipments over several days straight from a 3rd party supplier, wasting your time and resulting in quality control issues.
Missing Items: Then key materials were missing from your kitset, slowing down construction progress and resulting in costly, unnecessary trips to the local hardware store.
Your Shed Project,
Made Easy
Ordering a pole shed for your rural property shouldn't be complicated, time consuming and frustrating, but too often it is. Easy Kit removes the frustrations by making it easy at every step of the process.
01. Instant Pricing Visibility with Unlimited Revisions
Instead of waiting weeks for a quote, Easy Kit’s live pricing configurator means you can simply draw the shed you want, and see the shed price in real time. Make as many design changes as you like, and immediately see the impact of those changes on the price of the shed. You can then simply order online.
02. One Complete Delivery
Instead of dealing with the headache of multiple deliveries, and not knowing what will turn up and when, your shed will be delivered in one complete delivery. This saves you time and means everything is onsite when you or your builder needs it.
03. Triple Checked Kitsets
Every Easy Kit shed undergoes a triple-checking process in our yard to ensure everything is included. This means your builder can stay onsite for the entire duration of the build, saving you time and money.
New Zealand
“I’ve already had other people ask about them because they can see the quality of the build.”
Ian DippieIan talks about his experience working with EasyKit to build a new shed on his property, sharing how the team handled everything from start to finish while delivering excellent communication and a high-quality result.
Live Pricing Shed Configurator
Wanting to know how much your shed design will cost? Use our live pricing configurator to draw your shed and see pricing changes in real time as you go.
Design, Price & Order Your Shed Online
Ordering your pole shed shouldn't be a difficult and time-consuming process. With Easy Kit, you can get instant pricing on your custom kitset design then simply order online.
01
Configure
Draw up your shed design on our live pricing configurator or choose one of our popular pre-drawn designs.
02
Confirm
Once you have confirmed your shed design, simple order online to get your shed underway.
03
Construct
Your shed will be delivered in one complete truckload, ready for you to begin construction.
Download Your Shed Range Brochure
Download the Easy Kit brochure to browse the range of sheds and answer questions about your shed project.
Expert Advice & Tips for Your Shed Project
Visit the Knowledge Hub for expert advice, helpful tips,
and inspiration to guide you through your shed-building journey.
How Close to the Boundary Can You Build a Shed? If you’re planning a shed on rural land, one of the first questions you’ll probably ask is: how close ...
You’ve got the site lined up and the shed design ready to go. Then comes the question that matters most:
Have you ever heard of a shed kit arriving over two weeks, in bits and pieces, from several different suppliers? It happens more often than most ...
Can’t Find the Shed You Need?
Use our online shed configurator to design your shed from the ground up!
Design Your Shed

.jpg?width=548&height=357&name=Shed%203%20(2).jpg)
.jpg?width=548&height=357&name=Shed%203%20(3).jpg)
.jpg?width=548&height=357&name=Shed%203%20(4).jpg)

.jpg?width=548&height=357&name=Shed%206%20(2).jpg)
.jpg?width=548&height=357&name=Shed%206%20(3).jpg)
.jpg?width=548&height=357&name=Shed%206%20(4).jpg)

.jpg?width=548&height=357&name=Shed%209%20(2).jpg)
.jpg?width=548&height=357&name=Shed%209%20(3).jpg)
.jpg?width=548&height=357&name=Shed%209%20(4).jpg)